2000L brewery equipment by TIANTAI
--Wilddog-Tiemann Beer Brewing Co. ZambiaBreweries
Brewery equipment Wilddog - Tiemann Beer Brewing Company just launched a 2000liter brewery system from Tiantai Company, 2-vessel Brewhouse with 2000liter fermentation tank and 2000L Bright Beer Tank.This is the first Craft Brewery in Zambia.


Customer is an Australia and have brewed a lot of beer and wine himself. So he is an very experienced brewer.
He knows us from many of our customers like Black hops brewery, Ballistic brewery and Laughing bones brewery etc.
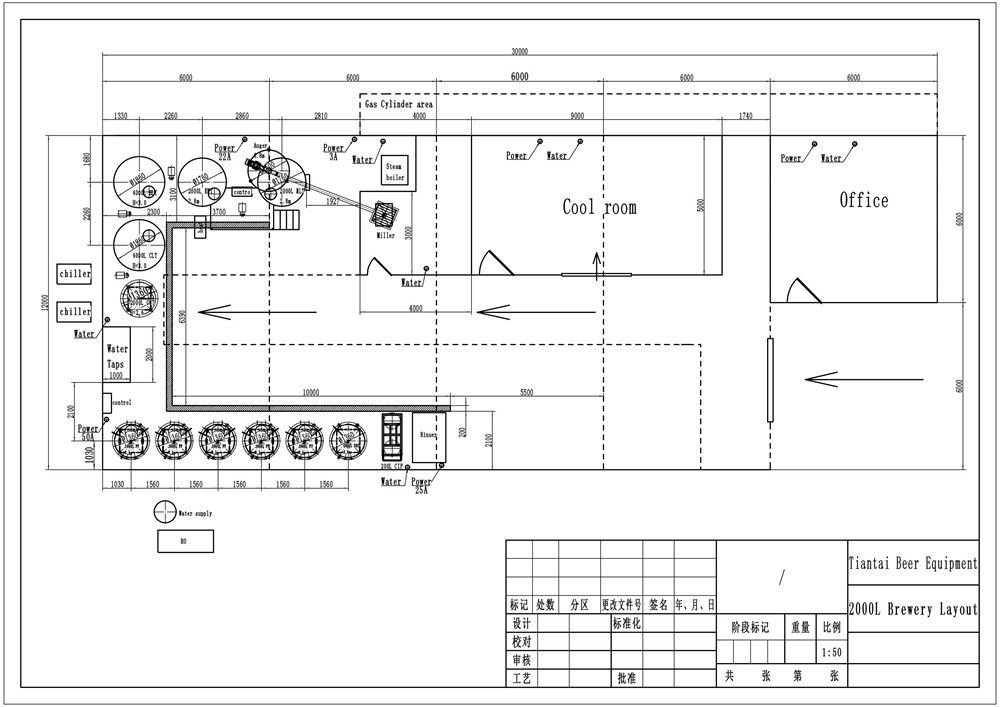
He visited Tiantai beer equipment company and also showed his space in building as below and we have customized the tank a lot to fit for his space.


Customer has done a great work of the installation and it was not easy but they have done it successfully.

2000L 2 vessel brewhouse with 4000L hot liquor tank and 4000L Cold Liquor tank.

2000L fermentation tank with customized diameter to put more in one containers to save sea freight.
The brewing day begins. Let us see what it happens:

The Brewing malt are ready and is milled.

Do the Lautering in the tank.

Check the Wort.

Do boiling and whirlpool.


After two weeks fermentation, the craft beer is ready! Enjoy the beer made by Tiantai Beer Equipment company!
It is filled in the cans by beer canning machine.
The whole brewery system include mash/lauter tun, kettle/whirlpool tun, wort cooling heat exchanger, fermentation tanks, Brite beer tanks. If you are interested in starting a brewery and need brewery equipment , please feel free contact with TIANTAI.
Thanks for your reading.
Damon
Email:biz@cnbrewery.com






.jpg)
.jpg)
.jpg)
Get A Quote